

设计师说在前面:本案是一个300平米的顶跃户型,位于杭州东方福邸。空间的视觉呈现是对生活的主观意识展现,在其克制、内敛的表象之下,蕴含着兼收并蓄的质感与能量,以及丰盈的精神内核。

▲ 一楼平面图和平面布置图

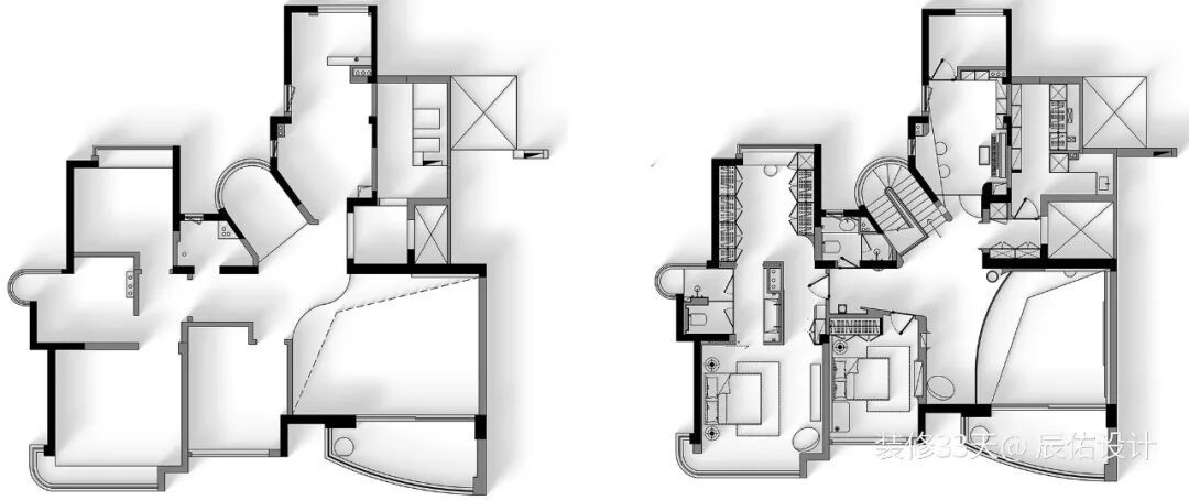
▲ 二楼平面图和平面布置图

▲ 入户进门把玄关和楼梯间打通了,形成了一个洄游动线,同时也兼顾了视觉隐私,左侧通往客餐厅,右侧去往厨房

▲ 客厅和餐厅为横厅结构,同时客厅挑高,采光极好,极简与艺术相互并置,在清浅印象中搭建纯净的空间幕布

▲ 将居住者理想中的生活场景逐一具象,在延展空间中还原生活的本貌

▲ 于流动之间构建生活场景,理性的结构成为感性的承载,纯粹与放松成为空间的基调

▲ 经典简约的设计品牌经得起时间沉淀,既是家具也是藏品

▲ 以优雅的线条与色块铺陈启始语境,倾注自然塑型的明净场域,从视觉享受至实用功能的构筑魅力,自在状态游走于随性与随心之间

▲ 舒适与写意相映,气韵与细节并行

▲ 白色弧形绒布大沙发以半围合的姿态构筑客厅场域,电视背景挑高到顶,简洁大气

▲ 通过二层挑空与流畅的曲线设计,打造出通透轻盈的复式空间。奶油色弧形沙发、异形茶几与大型艺术吊灯构成视觉核心,彩色方块装置与艺术画作点缀其间,在纯白基调中注入活力与艺术感

▲ 将餐厅的阳台扩进来,做了一排储物空间兼水吧台

▲ 吧台材质上以银色不锈钢结合墨绿色 Prada 大理石,几种材质的混搭让空间呈现出一种现代主义的先锋感

▲ 一张圆形大理石餐桌,周围环绕造型圆润的米白色餐椅

▲ 餐桌上方呼应圆形吊顶,悬挂造型灵动的艺术吊灯

▲ 空间场景与生活的互动关系,在细微处着力,于方寸间雕琢

▲ 从餐厅望向客厅方向

▲ 走廊以流畅的曲线打破空间棱角,银灰金属质感与柔白曲面交织,在极简中营造出流动的韵律感

▲ 从客厅望向楼梯方向,半遮挡的体块结构添几分质感和层次,不似一览无余的情境,趣意横生而引人探寻

▲ 从弧形白墙的玄关过渡,进入以浅木色与米白为主调的厨房空间。同色系隐形门与嵌入式电器柜融为一体,整体线条干净利落,尽显现代简约的克制美学

▲ 浅白微斜的墙面嵌着圆洞,与浅木台阶、弧形门洞相映

▲ 从二楼俯瞰客厅

▲ 蜿蜒流畅的曲线传达舒缓的感官和自由的空间气息,走廊端景的隐形门后是主卧套房

▲ 主卧由衣帽间、卧室和主卫构成

▲ 顺着右侧蜿蜒进入衣帽间

▲ 衣帽间由左右两排到顶衣柜组成,窗边的一体化梳妆台以温润的米白柜体搭配通透的黑玻台面,酒红色 Panton 椅成为空间里的点睛之笔

▲ 向右进入卧室方向,靠墙是一排衣柜,侧面留了一个置物台

▲ 主卧、卫生间、衣帽间呈回字形动线,更加通透便利

▲ 浅木色地板与素色地毯呼应,整体空间干净通透,尽显简约舒适的质感,浅灰软包床头搭配原木圆几

▲ 主卫把洗漱、如厕、沐浴功能分离

▲ 浅灰大理石台盆与原木柜体温润雅致

▲ 次卧以柔和的米白与浅棕为主调,弧形软包床头搭配造型别致的棕咖色床头柜,白色蘑菇灯和墙上的艺术画增添童话感

▲ 次卧以柔和的奶油色为主调,米白软包床头搭配奶白床品,营造出松弛的休憩氛围。一旁的紫色葫芦形床头柜与同色系童趣挂画相映成趣,点亮了空间的活泼感
正中优配提示:文章来自网络,不代表本站观点。